The NAHU Story
The NAHU Story (EN)
The concept of the NAHU homes comes from the spiritual essence that was born along with the creation of Puerto Colon. From the first walk on the beach all the way to the master plan, both respect and positive vibrations are results of the harmony between Mother NA ture and HU man. With his personal feelings and proven experience, these elements were captured by Puerto Colon's founder and architect Francesco F. Martin.
The Modern Way of Living with The Past
The object of the NAHU homes is to keep the untouched surroundings, harmony, and natural beauty of La Isabela, and the heritage from La Hispaniola and the new world. The main columns from the NAHU homes are made out of wooden trunks to represent the circle of life, growth, the strength of maturity, as well as the strength of nature.
Wood... A substance with soul!
It's amazing how wood has such a soft touch when it comes in contact with our skin, how it becomes as unique as the creative hands that molds it, and how it breathes and preserves its self in the atmosphere of tropical temperatures. The immaculate wood trunks that sit in a vertical position as attractive posts integrated into the NAHU homes, are the foundation of the main architectural plan. Complete with decorative beams, breathe taking floor designs, and spacious walls, we developed an environment with no limits to the personal taste of the owner. NAHU homes are designed to take full advantage of the constant refreshing breeze from the trade winds. The NAHU home incorporates the modern way of living in the outdoors with the modern way of living with the past.
A ventilated roof... What a pleasant hat!
The high ventilated roofs overhang past the balcony ensuring the entire veranda remains unaffected from the tropical climate. NAHU roofs are sealed with wooden shingles which gives us the same amazing comfort as a Cana roof, but without the inconvenience of insects, dust, and potential fire risks.
Polaris , Polux , Castor , Saturno , Orion , Luna , Sol , Venus , Horizonte , and Azimut , are all navigation tools used since Christopher Columbus' voyages. These names continue to be in the spirit of the NAHU homes, focusing on a totally free horizon of the fabulous Caribbean Sunrises.
Historia de las Casas NAHU (ES)
El Concepto de las Casas NAHU es la continuación espiritual que surge con la creación de Puerto Colón. Desde las primeras caminatas en la playa hasta los planos definitivos, respeto y vibraciones, ambos resultado de la armonía entre la NA turaleza y el ser HU mano. Concebidas por el Creador de Puerto Colón, Arquitecto Francesco F. Martin.
El arte moderno de vivir en armonía con el pasado
El Objectivo de las Casas NAHU es mantener intacto el entorno, la armonía y la belleza natural de La Isabela, patrimonio de la Hispaniola y del nuevo mundo. Las columnas principales de las casas están hechas con troncos de madera , símbolos de la fuerza natural y, a la vez, símbolo del ciclo de la vida: crecimiento, la fuerza de la madurez y el paso efímero en el tiempo.
Madera ..una sustancia con Alma!
Los bellos troncos en sus posiciones verticales, elementos atractivos totalmente integrados, son las bases del cuadro principal de la planta arquitectónica. Completada con vigas, pasamanos, pisos, paredes.... abren un ambiente sin límite al gusto personal de su dueño. Suave en su contacto con nuestra piel, esculturable en manos creativas, respira y se conserva en el clima y en la temparatura tropical. El arte moderno de vivir al aire libre. Las Casas NAHU están planificadas y orientadas para aprovechar al máximo de la brisa constante y refrescante de los alisios.
Un techo ventilado.. Qué sombrero tan agradable!
Los techos altos, ventilados que sobresalen por encima de los balcones cubriendolos completamente y protegiendolos del clima tropical. Los techos NAHU estan erméticamente sellados con tela soldada y shingles de madera que nos ofrecen la misma comodidad como un techo de cana, pero sin los inconvenientes de insectos, polvo y los altos riesgos de fuego.
Polaris , Polux , Castor , Saturno , Orion , Luna , Sol , Venus , Horizonte , y Azimut , son herramientas de la navegacion usados desde los viajes de Cristóbal Colón. Estos nombres continuan vigentes en el espíritu de las casas NAHU, enfocados hacia un horizonte libre y abierto a los amaneceres caribeños.
Model Catalog
Azimut
Azimut (EN)


| Sq. Mt. | Sq. Ft. | |
|---|---|---|
| House Area | 226 | 2,432 |
| Terrace Area | 76 | 818 |
| Total Area | 302 | 3,250 |
Azimut (ES)


| m 2 | Pies 2 | |
|---|---|---|
| Area Interior | 226 | 2,432 |
| Area Exterior | 76 | 818 |
| Area Total | 302 | 3,250 |
Castor
Castor (EN)


| Sq. Mt. | Sq. Ft. | |
|---|---|---|
| House Area | 230 | 2,475 |
| Terrace Area | 105 | 1,130 |
| Total Area | 335 | 3,605 |
Castor (ES)


| m 2 | Pies 2 | |
|---|---|---|
| Area Interior | 230 | 2,475 |
| Area Exterior | 105 | 1,130 |
| Area Total | 335 | 3,605 |
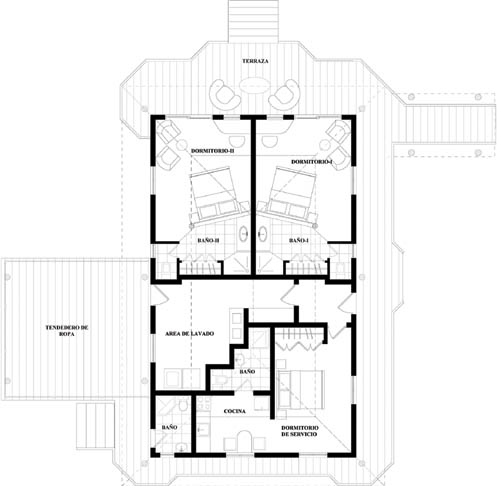
Horizonte
Horizonte (EN)


| Level 2 | Sq. Mt. | Sq. Ft. |
|---|---|---|
| House Area | 82 | 882 |
| Terrace Area | 22 | 236 |
| Level 1 | Sq. Mt. | Sq. Ft. |
|---|---|---|
| House Area | 253 | 2,723 |
| Terrace Area | 109 | 1,173 |
| Total Area | 466 | 5,014 |
Horizonte (ES)


| Nivel 2 | m 2 | Pies 2 |
|---|---|---|
| Area Interior | 82 | 882 |
| Area Exterior | 22 | 236 |
| Nivel 1 | m 2 | Pies 2 |
|---|---|---|
| Area Interior | 253 | 2,723 |
| Area Exterior | 109 | 1,173 |
| Area Total | 466 | 5,014 |
Luna
Luna (EN)


| Sq. Mt. | Sq. Ft. | |
|---|---|---|
| House Area | 123 | 1,323 |
| Terrace Area | 51 | 548 |
| Total Area | 174 | 1,871 |
Luna (ES)


| m 2 | Pies 2 | |
|---|---|---|
| Area Interior | 123 | 1,323 |
| Area Exterior | 51 | 548 |
| Area Total | 174 | 1,871 |
Neptuno
Neptuno (EN)


| Sq. Mt. | Sq. Ft. | |
|---|---|---|
| House Area | 245 | 2.634 |
| Terase Area | 74 | 795 |
| Total Area | 319 | 3.429 |
Neptuno (ES)


| m 2 | Pies 2 | |
|---|---|---|
| Area Interior | 245 | 2.634 |
| Area Exterior | 74 | 795 |
| Area Total | 319 | 3.429 |
Orion
Orion (EN)


| Level 2 | Sq. Mt. | Sq. Ft. |
|---|---|---|
| House Area | 97 | 1,044 |
| Terrace Area | 18 | 193 |
| Level 1 | Sq. Mt. | Sq. Ft. |
|---|---|---|
| House Area | 406 | 4,370 |
| Terrace Area | 135 | 1,453 |
| Total Area | 656 | 7,060 |
Orion (ES)


| Nivel 2 | m 2 | Pies 2 |
|---|---|---|
| Area Interior | 97 | 1,044 |
| Area Exterior | 18 | 193 |
| Nivel 1 | m 2 | Pies 2 |
|---|---|---|
| Area Interior | 406 | 4,370 |
| Area Exterior | 135 | 1,453 |
| Area Total | 656 | 7,060 |
Polaris
Polaris (EN)


| Sq. Mt. | Sq. Ft. | |
|---|---|---|
| House Area | 406 | 4,370 |
| Terrace Area | 110 | 1,184 |
| Total Area | 516 | 5,554 |
Polaris (ES)


| m 2 | Pies 2 | |
|---|---|---|
| Area Interior | 406 | 4,370 |
| Area Exterior | 110 | 1,184 |
| Area Total | 516 | 5,554 |
Polux
Polux (EN)


| Sq. Mt. | Sq. Ft. | |
|---|---|---|
| House Area | 345 | 3,713 |
| Terase Area | 98 | 1,054 |
| Total Area | 443 | 4,767 |
Polux (ES)


| m 2 | Pies 2 | |
|---|---|---|
| Area Interior | 345 | 3,713 |
| Area Exterior | 98 | 1,054 |
| Area Total | 443 | 4,767 |
Saturno
Saturno (EN)


| Level 1 | Sq. Mt | Sq. Ft |
|---|---|---|
| House Area | 59.00 | 634 |
| Terrace Area | 24.00 | 258 |
| Level 2 | Sq. Mt | Sq. Ft |
|---|---|---|
| House Area | 128.00 | 1.376 |
| Terrace Area | 83.00 | 892 |
| Total Area | 294.000 | 3.160 |
Saturno (ES)


| Nivel 1 | m 2 | Pies 2 |
|---|---|---|
| Area de casa | 59.00 | 634 |
| Area Terraza | 24.00 | 258 |
| Nivel 2 | m 2 | Pies 2 |
|---|---|---|
| Area de casa | 128.00 | 1.376 |
| Area Terraza | 83.00 | 892 |
| Area Total | 294.000 | 3.160 |
Sol
Sol (EN)


| Sq. Mt. | Sq. Ft. | |
|---|---|---|
| House Area | 200 | 2,152 |
| Terrace Area | 72 | 775 |
| Total Area | 272 | 2,927 |
Sol (ES)


| m 2 | Pies 2 | |
|---|---|---|
| Area Interior | 200 | 2,152 |
| Area Exterior | 72 | 775 |
| Area Total | 272 | 2,927 |
Taurus
Taurus (EN)


| Sq. Mt. | Sq. Ft. | |
|---|---|---|
| House Area | 197 | 2,118 |
| Terase Area | 86 | 924 |
| Total Area | 283 | 3,042 |
Taurus (ES)


| m 2 | Pies 2 | |
|---|---|---|
| Area Interior | 197 | 2,118 |
| Area Exterior | 86 | 924 |
| Area Total | 283 | 3,042 |
Venus
Venus (EN)


| Sq. Mt. | Sq. Ft. | |
|---|---|---|
| House Area | 272 | 2,927 |
| Terrace Area | 77 | 828 |
| Total Area | 349 | 3,755 |
Venus (ES)


| m 2 | Pies 2 | |
|---|---|---|
| Area Interior | 272 | 2,927 |
| Area Exterior | 77 | 828 |
| Area Total | 349 | 3,755 |